L1 - TOP SOLUTION
In the Flexica Line system, as standard, jointing to the ceiling is done with a recess. A glass solution can be carried out using single glass. Wall thickness 100 or 125 mm.
Find all information about Flexica Line on our download page
Top solution Flexica Line. 100 mm plasterboard wall. 32 mm top track.
Top solution Flexica Line. 100 mm wall in a double glass. 32 mm top track.
L2 - BOTTOM SOLUTION
In the Flexica Line system, as standard, jointing to the floor is done with a recess. A glass solution can be carried out using single glass. Wall thickness 100 or 125 mm.
Find all information about Flexica Line on our download page
Bottom solution Flexica Line. 100 mm plasterboard wall. 51 mm recess.
Bottom solution Flexica Line. 100 mm plasterboard wall. 23 mm recess.
Bottom solution Flexica Line. 100 mm wall in a double glass. 51 mm recess.
Bottom solution Flexica Line. 100 mm wall in a double glass. 23 mm recess.
L3 - HORIZONTAL MODULE JOINTING
In the Flexica Line system, panel jointing can be carried out with solid partitions, glass or a combination solution. A glass solution can be carried out using single glass. Wall thickness 100 or 125 mm.
Find all information about Flexica Line on our download page
Horizontal module joint Flexica Line. Panel joint in 100 mm wall between two double glass modules.
Horizontal module joint Flexica Line. Panel joint in 100 mm wall between double glass and plasterboard module.
Horizontal module joint Flexica Line. Panel joint in 100 mm wall between plasterboard and double glass module.
Horizontal module joint Flexica Line. Panel joint in 125 mm wall between two double glass modules.
Horizontal module joint Flexica Line. Panel joint in 125 mm wall between double glass and plasterboard module.
Horizontal module joint Flexica Line. Panel joint in 125 mm wall between plasterboard and double glass module.
L4 - DOOR SOLUTION WITH OVERPANEL
In the Flexica Line, door joints can be carried out with solid overpanels or glazed overpanels. Wood, steel or steel-covered wooden frame. A glass solution can be carried out using single glass. Wall thickness 100 or 125 mm.
Find all information about Flexica Line on our download page
Vertical section Flexica Line. 100 mm wall. Joint between steel door frame and two double glass modules.
Vertical section Flexica Line. 100 mm wall. Joint between steel-covered wooden door frame and two double glass modules.
Vertical section Flexica Line. 100 mm wall. Joint between wooden door frame and two double glass modules.
Vertical section Flexica Line. 100 mm wall. Joint between steel door frame and two plasterboard modules.
Vertical section Flexica Line. 100 mm wall. Joint between steel-covered wooden door frame and two plaster modules.
Vertical section Flexica Line. 100 mm wall. Joint between wooden door frame and two plaster modules.
L5 - DOOR SOLUTION FOR FULL-HEIGHT DOOR
Full-height glass or solid door with wood, steel or steel-covered wooden frame.
Find all information about Flexica Line on our download page
Vertical section Flexica Line. 100 mm wall. Steel frame with solid door. 25-30 mm recess.
Vertical section Flexica Line. 100 mm wall. Steel frame with solid door. 10-20 mm recess.
Vertical section Flexica Line. 100 mm wall. Steel-covered wooden frame with solid door. 10-20 mm recess.
Vertical section Flexica Line. 100 mm wall. Wooden frame with solid door. 10-20 mm recess.
V1 - DOOR SOLUTION AGAINST WALL
In the Flexica Line system, as standard, jointing to the wall is done with a recess. A glass solution can be carried out using single glass. Wall thickness 100 or 125 mm.
Find all information about Flexica Line on our download page
Horizontal section Flexica Line. 100 mm wall. Steel frame with solid door. 15-20-50 mm recess.
Horizontal section Flexica Line. 100 mm wall. Steel frame with solid door. 10-20 mm recess.
Horizontal section Flexica Line. 100 mm wall. Steel frame with glass door. 10-20 mm recess.
Horizontal section Flexica Line. 100 mm wall. Steel-capped wooden frame E30 with solid door. 10-20 mm recess.
Horizontal section Flexica Line. 100 mm wall. Steel-capped wooden frame with solid door. Jointed with plasterboard.
Horizontal section Flexica Line. 100 mm wall. Wooden frame with glass door. 10-20 mm recess.
V2 - DOOR SOLUTION WITH STRIKING-PLATE SIDE
Contact Triplan at +45 43 53 99 99 and learn more about jointing towards the striking-plate side.
Find all information about Flexica Line on our download page
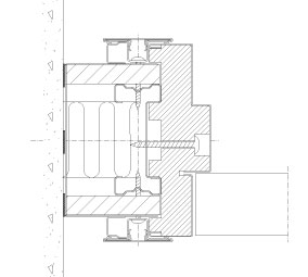
V3 - MODULE JOINTING
In the Flexica Line system, module jointing can be carried out with solid partitions, glass or a combination solution. A glass solution can be carried out using single glass.
Find all information about Flexica Line on our download page
Horizontal section Flexica Line. Module joint in 100 mm wall between two double glass modules.
Horizontal section Flexica Line. Module joint in 100 mm wall between two plasterboard modules.
Horizontal section Flexica Line. Module joint in 100 mm wall between plasterboard and double glass module.
Horizontal section Flexica Line. Module joint in 125 mm wall between two double glass modules.
Horizontal section Flexica Line. Module joint in 125 mm wall between two plasterboard modules.
Horizontal section Flexica Line. Module joint in 125 mm wall between plasterboard and double glass module.
V4 - CORNER SOLUTION
In the Flexica Line system, corner solutions can be carried out with solid partitions, glass or a combination solution. A glass solution can be carried out using single glass. Corner joints can be carried out as 30°, 45° and 90°.
Find all information about Flexica Line on our download page
Horizontal section Flexica Line. 90° steel-covered corner joint in 100 mm wall between two double glass modules.
Horizontal section Flexica Line. 90° steel-covered corner joint in 100 mm wall between plaster and double glass modules.
Horizontal section Flexica Line. 30° steel-covered corner joint in 100 mm wall between two plasterboard modules.
Horizontal section Flexica Line. 45° steel-covered corner joint between two plasterboard modules.
Horizontal section Flexica Line. 30° steel-covered corner joint in 100 mm wall between plasterboard and double glass module.
Horizontal section Flexica Line. 30° steel-covered corner joint in 100 mm wall between two double glass modules.
V5 - JOINTING TO WALL
Jointing to wall with 100 or 125 mm plasterboard or glass wall.
Find all information about Flexica Line on our download page
Horizontal section Flexica Line. Joint to wall. 100 mm plasterboard wall with filler and joint section.
Horizontal section Flexica Line. Joint to wall. 100 mm plasterboard wall with wooden strips and joint section.
Horizontal section Flexica Line. Joint to wall. 100 mm double glass wall with joint section.
Horizontal section Flexica Line. Joint to wall. 100 mm double glass wall with wooden strips and joint section.
V6 - DOOR SOLUTION DOUBLE DOOR
Contact Triplan at +45 43 53 99 99 and learn more about door solutions with double doors.
Find all information about Flexica Line on our download page
V7 - DOOR SOLUTION HINGE SIDE
Module jointed door, hinge side. Wood, steel or steel-covered wooden frame.
Glass or solid door.
Find all information about Flexica Line on our download page
Horizontal section Flexica Line. Horizontal joint in 100 mm wall between plasterboard module and steel frame with solid door.
Horizontal section Flexica Line. Horizontal joint in 100 mm wall between plasterboard module and steel frame with glass door.
Horizontal section Flexica Line. Horizontal joint in 100 mm wall between double glass module and steel frame with solid door.
Horizontal section Flexica Line. Horizontal joint in 100 mm wall between double glass module and steel frame with glass door.
Horizontal section Flexica Line. Horizontal joint in 100 mm wall between double glass module and wooden frame with solid door.
Horizontal section Flexica Line. Horizontal joint in 100 mm wall between double glass module and steel-covered wooden frame with solid door.
V8 - T JOINT
In the Flexica Line system, T joints can be carried out with solid partitions, glass or a combination solution. A glass solution can be carried out using single glass.
Find all information about Flexica Line on our download page
Horizontal T joint Flexica Line. Joint in 2 x 100 mm wall between two plasterboard modules with wooden strips and joint section.
Horizontal T joint Flexica Line. Joint in 2 x 100 mm wall between two double glass modules with wooden strips and joint section.
V9 - END JOINT
In the Flexica Line system, end solutions can be carried out for solid partitions, glass or with a combination solution with cover caps of steel or a blind door frame.
A glass solution can be carried out using single glass.
Find all information about Flexica Line on our download page
Horizontal section Flexica Line. Wall end in 100 mm plasterboard wall. End with steel cover caps.
Horizontal section Flexica Line. Wall end in 100 mm plasterboard wall. End with blind door frame.
Horizontal section Flexica Line. Wall end in 100 mm double glass wall. End with steel cover caps.
Horizontal section Flexica Line. Wall end in 100 mm double glass wall. End with blind door frame.