Flexica Line systemvægge - Tegninger
L1 - TOPLØSNINGER
I Flexica Line-systemet udføres tilslutning til loft som standard med reces. Glasløsning kan udføres med enkeltglas. Vægtykkelse 100 eller 125 mm.
Find alt materiale om Flexica Line på vores side med download


L2 - BUNDLØSNINGER
I Flexica Line-systemet udføres tilslutning til gulv som standard med reces. Glasløsning kan udføres med enkeltglas. Vægtykkelse 100 eller 125 mm.
Find alt materiale om Flexica Line på vores side med download




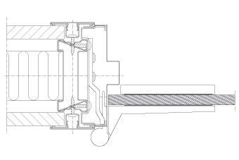
L3 - VANDRET MODULSAMLING
I Flexica Line-systemet kan panelsamlinger udføres med faste partier, glas eller med en kombinationsløsning. Glasløsning kan udføres med enkeltglas. Vægtykkelse 100 eller 125 mm.
Find alt materiale om Flexica Line på vores side med download






L4 - DØRLØSNING MED OVERPARTI
I Flexica Line-systemet kan dørsamlinger udføres med faste overpartier eller overglas. Træ-, stål- eller stålbeklædt trækarm. Glasløsning kan udføres med enkeltglas. Vægtykkelse 100 eller 125 mm.
Find alt materiale om Flexica Line på vores side med download






L5 - DØRLØSNING FULDHØJDE-DØR
Fuldhøjde glas- eller massivdør med træ-, stål- eller stålbeklædt trækarm.
Find alt materiale om Flexica Line på vores side med download




V1 - DØRLØSNING MOD VÆG
I Flexica Line-systemet udføres tilslutning til væg som standard med reces. Glasløsning kan udføres med enkeltglas. Vægtykkelse 100 eller 125 mm.
Find alt materiale om Flexica Line på vores side med download






V2 - DØRLØSNING SLUTBLIKSIDE
Kontakt Triplan 43 53 99 99 for at høre mere om dørløsning i slutblikside.
Find alt materiale om Flexica Line på vores side med download
V3 - MODULSAMLING
I Flexica Line-systemet kan modulsamlinger udføres med faste partier, glas eller med en kombinationsløsning.
Glasløsning kan udføres med enkeltglas.
Find alt materiale om Flexica Line på vores side med download






V4 - HJØRNELØSNING
I Flexica Line-systemet kan hjørnesamlinger udføres med faste partier, glas eller med en kombinationsløsning. Glasløsning kan udføres med enkeltglas. Hjørnesamlinger kan udføres både som 30°, 45° og 90°.
Find alt materiale om Flexica Line på vores side med download






V5 - TILSLUTNING MOD VÆG
Tilslutning mod væg med 100 eller 125 mm gips- eller glasvæg.
Find alt materiale om Flexica Line på vores side med download




V6 - DØRLØSNING DOBBELTDØR
Kontakt Triplan 43 53 99 99 for at høre mere om dørløsning vedr. dobbeltdør.
Find alt materiale om Flexica på vores side med download
V7 - DØRLØSNING HÆNGSELSIDE
Modulsamling dør, hængselside. Træ-, stål- eller stålbeklædt trækarm.
Glas- eller massivdør.
Find alt materiale om Flexica på vores side med download






V8 - T-SAMLING
I Flexica Line-systemet kan T-samlinger udføres med faste partier, glas eller med en kombinationsløsning. Glasløsning kan udføres med enkeltglas.
Find alt materiale om Flexica Line på vores side med download


V9 - ENDELØSNING
I Flexica Line-systemet kan endeløsninger udføres for faste partier, glas eller med en kombinationsløsning med dækkappe i stål eller en blind dørkarm.
Glasløsning kan udføres med enkeltglas.
Find alt materiale om Flexica på vores side med download




FLEXICA LINE
Klik på numrene for at se detaljen og de forskellige versioner.
Lodret snit
L1: Topløsning
L2: Bundløsning
L3: Modulsamling
L4: Dørløsning
L5: Dørløsning fuldhøjde-dør
Vandret snit
V1: Dørløsning mod væg
V2: Dørløsning slutblikside
V3: Modulsamling
V4: Hjørneløsning
V5: Tilslutning mod væg
V6: Dørløsning dobbeltdør
V7: Dørløsning hængselside
V8: T-samling
V9: Endesamling


