Flexica systemvægge - Tegninger

L1 - TOPLØSNINGER

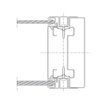
I Flexica-systemet udføres tilslutning til loft med eller uden reces. Glasløsning kan udføres med enkeltglas. 

Topløsning Flexica. 100 mm væg i gips. Uden reces. Med topliste 50 mm. Eller med gips til loft.
Topløsning Flexica. 100 mm væg i gips. Uden reces. Med topliste 50 mm. Eller med gips til loft.
Topløsning Flexica med bundrem. 100 mm væg i gips. Uden reces. Topliste 50 mm.
Topløsning Flexica med bundrem. 100 mm væg i gips. Uden reces. Topliste 50 mm.
Topløsning Flexica. 100 mm væg i gips. 15 mm reces og 15 mm U-topliste.
Topløsning Flexica. 100 mm væg i gips. 15 mm reces og 15 mm U-topliste.
Topløsning Flexica. 100 mm væg i gips. 15-25 reces. Med dobbeltfliget H-profil.
Topløsning Flexica. 100 mm væg i gips. 15-25 reces. Med dobbeltfliget H-profil.
Topløsning Flexica. 100 mm væg i dobbeltglas. Uden reces, 50 mm topliste eller 15 mm U-topliste.
Topløsning Flexica. 100 mm væg i dobbeltglas. Uden reces, 50 mm topliste eller 15 mm U-topliste.
Topløsning Flexica. 100 mm væg i dobbeltglas. 15-30 mm reces, 15 mm U-topliste.
Topløsning Flexica. 100 mm væg i dobbeltglas. 15-30 mm reces, 15 mm U-topliste.
Topløsning Flexica. 100 mm væg i dobbeltglas. 16-26 mm reces og enkeltfliget H-profil.
Topløsning Flexica. 100 mm væg i dobbeltglas. 16-26 mm reces og enkeltfliget H-profil.
Topløsning Flexica. 100 mm væg i dobbeltglas. 15 mm reces og 15 mm U-topliste.
Topløsning Flexica. 100 mm væg i dobbeltglas. 15 mm reces og 15 mm U-topliste.

L2 - BUNDLØSNINGER

I Flexica-systemet udføres tilslutning til gulv med eller uden reces. Glasløsning kan udføres med enkeltglas. 

Bundløsning Flexica. 100 mm væg i gips. Uden reces. 20 mm tilslutningsprofil. Kappe mod gulv.
Bundløsning Flexica. 100 mm væg i gips. Uden reces. 20 mm tilslutningsprofil. Kappe mod gulv.
Bundløsning Flexica. 100 mm væg i gips. 50 eller 100 mm reces.
Bundløsning Flexica. 100 mm væg i gips. 50 eller 100 mm reces.
Bundløsning Flexica. 125 mm væg i dobbelt lag gips. 50 mm reces.
Bundløsning Flexica. 125 mm væg i dobbelt lag gips. 50 mm reces.
Bundløsning Flexica til 100 mm væg i dobbeltglas. 50 eller 100 mm reces.
Bundløsning Flexica til 100 mm væg i dobbeltglas. 50 eller 100 mm reces.

L3 - VANDRET MODULSAMLING

I Flexica-systemet kan panelsamlinger udføres med faste partier, glas eller med en kombinationsløsning. Glasløsning kan udføres med enkeltglas. 

Vandret modulsamling Flexica. Samling i 100 mm væg mellem 2 gipsmoduler.
Vandret modulsamling Flexica. Samling i 100 mm væg mellem 2 gipsmoduler.
Vandret modulsamling Flexica. Samling i 100 mm væg mellem gips- og dobbeltglasmodul.
Vandret modulsamling Flexica. Samling i 100 mm væg mellem gips- og dobbeltglasmodul.
Vandret modulsamling Flexica. Samling i 100 mm væg mellem dobbeltglas- og gipsmodul.
Vandret modulsamling Flexica. Samling i 100 mm væg mellem dobbeltglas- og gipsmodul.
Vandret modulsamling Flexica. Samling i 100 mm væg mellem 2 dobbeltglasmoduler.
Vandret modulsamling Flexica. Samling i 100 mm væg mellem 2 dobbeltglasmoduler.

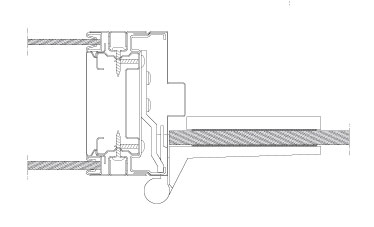
L4 - DØRLØSNING MED OVERPARTI

I Flexica-systemet kan dørsamlinger udføres med faste overpartier eller overglas. Træ-, stål- eller stålbeklædt trækarm. Glasløsning kan udføres med enkeltglas.

Vertikalt snit Flexica. 100 mm væg. Samling mellem gipsmodul og dørkarm i træ.
Vertikalt snit Flexica. 100 mm væg. Samling mellem gipsmodul og dørkarm i træ.
Vertikalt snit Flexica. 100 mm væg. Samling mellem dobbeltglasmodul og dørkarm i træ.
Vertikalt snit Flexica. 100 mm væg. Samling mellem dobbeltglasmodul og dørkarm i træ.
Vertikalt snit Flexica. 100 mm væg. Samling mellem dobbeltglasmodul og stålkarm til glasdør.
Vertikalt snit Flexica. 100 mm væg. Samling mellem dobbeltglasmodul og stålkarm til glasdør.
Vertikalt snit Flexica. 100 mm væg. Samling mellem gipsmodul og stålkarm til glasdør.
Vertikalt snit Flexica. 100 mm væg. Samling mellem gipsmodul og stålkarm til glasdør.

L5 - DØRLØSNING FULDHØJDE-DØR

Fuldhøjde glas- eller massivdør med træ-, stål- eller stålbeklædt trækarm.

 

 

Vertikalt snit Flexica. 100 mm væg. Stålkarm med massivdør i fuld højde. 15-30 mm reces med dobbeltfliget H-profil.
Vertikalt snit Flexica. 100 mm væg. Stålkarm med massivdør i fuld højde. 15-30 mm reces med dobbeltfliget H-profil.
Vertikalt snit Flexica. 100 mm væg. Stålkarm. 15 mm U-topliste.
Vertikalt snit Flexica. 100 mm væg. Stålkarm. 15 mm U-topliste.
Vertikalt snit Flexica. 100 mm væg. Stålbeklædt trækarm med massivdør.
Vertikalt snit Flexica. 100 mm væg. Stålbeklædt trækarm med massivdør.
Vertikalt snit Flexica. 100 mm væg. Trækarm med massivdør.
Vertikalt snit Flexica. 100 mm væg. Trækarm med massivdør.

V1 - DØRLØSNING MOD VÆG

Kontakt Triplan 43 53 99 99 og hør nærmere om mulighederne for dør-tilslutning mod væg

 

 

 

 

 

 

 

 

 

 

 

 

 

 

 

 

 

 

 

 

 

 

 

 

 

 

 

 

  

 

 

 

 

 

 

V2 - DØRLØSNING SLUTBLIKSIDE

Kontakt Triplan 43 53 99 99 for at høre mere om dørløsning i slutblikside.

 

 

 

 

 

 

 

 

 

 

 

 

 

 

 

 

 

 

 

 

 

 

 

 

 

 

 

 

  

 

 

 

 

 

 

V3 - MODULSAMLING

I Flexica-systemet kan modulsamlinger udføres med faste partier, glas eller med en kombinationsløsning.
Glasløsning kan udføres med enkeltglas.

 

 

Vandret snit Flexica. Modulsamling i 100 mm væg mellem to gipsmoduler.
Vandret snit Flexica. Modulsamling i 100 mm væg mellem to gipsmoduler.
Vandret snit Flexica. Modulsamling i 125 mm væg mellem mellem to gipsmoduler.
Vandret snit Flexica. Modulsamling i 125 mm væg mellem mellem to gipsmoduler.
Vandret snit Flexica. Modulsamling i 100 mm væg mellem gips- og dobbelt glasmodul.
Vandret snit Flexica. Modulsamling i 100 mm væg mellem gips- og dobbelt glasmodul.
Vandret snit Flexica. Modulsamling i 125 mm væg mellem gips- og dobbelt glasmodul.
Vandret snit Flexica. Modulsamling i 125 mm væg mellem gips- og dobbelt glasmodul.
Vandret snit Flexica. Modulsamling i 100 mm væg mellem to dobbelte glasmoduler.
Vandret snit Flexica. Modulsamling i 100 mm væg mellem to dobbelte glasmoduler.
Vandret snit Flexica. Modulsamling i 125 mm væg mellem to dobbelte glasmoduler.
Vandret snit Flexica. Modulsamling i 125 mm væg mellem to dobbelte glasmoduler.

V4 - HJØRNELØSNING

I Flexica-systemet kan hjørnesamlinger udføres med faste partier, glas eller med en kombinationsløsning. Glasløsning kan udføres med enkeltglas. Hjørnesamlinger kan udføres både som 30°, 45° og 90°.

 

 

Vandret snit Flexica. 90° hjørnesamling med F-profil i 100 mm væg mellem 2 gipsmoduler.
Vandret snit Flexica. 90° hjørnesamling med F-profil i 100 mm væg mellem 2 gipsmoduler.
Vandret snit Flexica. 90° stålbelagt hjørnesamling i 100 mm væg mellem 2 gipsmoduler.
Vandret snit Flexica. 90° stålbelagt hjørnesamling i 100 mm væg mellem 2 gipsmoduler.
Vandret snit Flexica. 90° hjørnesamling med F-profil i 100 mm væg mellem 2 dobbeltglasmoduler.
Vandret snit Flexica. 90° hjørnesamling med F-profil i 100 mm væg mellem 2 dobbeltglasmoduler.
Vandret snit Flexica. 90° stålbelagt hjørnesamling i 100 mm væg mellem 2 dobbeltglasmoduler.
Vandret snit Flexica. 90° stålbelagt hjørnesamling i 100 mm væg mellem 2 dobbeltglasmoduler.
Vandret snit Flexica. 30° stålbelagt hjørnesamling i 100 mm væg mellem 2 gipsmoduler.
Vandret snit Flexica. 30° stålbelagt hjørnesamling i 100 mm væg mellem 2 gipsmoduler.
Vandret snit Flexica. 45° hjørnesamling med omegaprofil mellem 2 gipsmoduler.
Vandret snit Flexica. 45° hjørnesamling med omegaprofil mellem 2 gipsmoduler.
Vandret snit Flexica. 30° stålbelagt hjørnesamling i 100 mm væg mellem gips- og dobbelt glasmodul.
Vandret snit Flexica. 30° stålbelagt hjørnesamling i 100 mm væg mellem gips- og dobbelt glasmodul.
30° stålbelagt hjørnesamling i 100 mm væg mellem 2 dobbeltglasmoduler.
30° stålbelagt hjørnesamling i 100 mm væg mellem 2 dobbeltglasmoduler.

V5 - TILSLUTNING MOD VÆG

TIlslutning mod væg med 100 eller 125 mm gips- eller glasvæg .

 

 

Flexica. Tilslutning mod væg. 100 mm gipsvæg med F-profil.
Flexica. Tilslutning mod væg. 100 mm gipsvæg med F-profil.
Flexica. Tilslutning mod væg. 125 mm gipsvæg med F-profil.
Flexica. Tilslutning mod væg. 125 mm gipsvæg med F-profil.
Flexica. Tilslutning mod væg. 100 mm gipsvæg med stolpe og F-profil.
Flexica. Tilslutning mod væg. 100 mm gipsvæg med stolpe og F-profil.
Flexica. Tilslutning mod væg. 100 mm gipsvæg med træliste og tilslutningsbeslag.
Flexica. Tilslutning mod væg. 100 mm gipsvæg med træliste og tilslutningsbeslag.
Flexica. Tilslutning mod væg. 100 mm gipsvæg med E-profil.
Flexica. Tilslutning mod væg. 100 mm gipsvæg med E-profil.
Flexica. Tilslutning mod væg. 100 mm dobbelt glasvæg med stolpe og F-profil.
Flexica. Tilslutning mod væg. 100 mm dobbelt glasvæg med stolpe og F-profil.
Flexica. Tilslutning mod væg. 100 mm dobbelt glasvæg med træliste og tilslutningsbeslag.
Flexica. Tilslutning mod væg. 100 mm dobbelt glasvæg med træliste og tilslutningsbeslag.
Flexica. Tilslutning mod væg. 100 mm dobbelt glasvæg med bundrem og F-profil.
Flexica. Tilslutning mod væg. 100 mm dobbelt glasvæg med bundrem og F-profil.

V6 - DØRLØSNING DOBBELTDØR

Kontakt Triplan 43 53 99 99 for at høre mere om dørløsning vedr. dobbeltdør.

 

 

 

 

 

 

 

 

 

 

 

 

 

 

 

 

 

 

 

 

 

 

 

 

 

 

 

 

 

 

 

 

 

 

 

 

V7 - DØRLØSNING HÆNGSELSIDE

Modulsamling dør, hængselside. Træ-, stål- eller stålbeklædt trækarm. Glas- eller massivdør.

 

 

Vandret snit Flexica. Horisontal samling i 100 mm væg mellem gipsmodul og trækarm med massivdør.
Vandret snit Flexica. Horisontal samling i 100 mm væg mellem gipsmodul og trækarm med massivdør.
Vandret snit Flexica. Horisontal samling i 125 mm væg mellem gipsmodul og trækarm med massivdør.
Vandret snit Flexica. Horisontal samling i 125 mm væg mellem gipsmodul og trækarm med massivdør.
Vandret snit Flexica. Horisontal samling i 100 mm væg mellem gipsmodul og stålkarm med massivdør.
Vandret snit Flexica. Horisontal samling i 100 mm væg mellem gipsmodul og stålkarm med massivdør.
Vandret snit Flexica. Horisontal samling i 125 mm væg mellem dobbelt glasmodul og trækarm med massivdør.
Vandret snit Flexica. Horisontal samling i 125 mm væg mellem dobbelt glasmodul og trækarm med massivdør.
Vandret snit Flexica. Horisontal samling i 100 mm væg mellem dobbelt glasmodul og trækarm med massivdør.
Vandret snit Flexica. Horisontal samling i 100 mm væg mellem dobbelt glasmodul og trækarm med massivdør.
Vandret snit Flexica. Horisontal samling i 100 mm væg mellem dobbelt glasmodul og stålkarm med massivdør.
Vandret snit Flexica. Horisontal samling i 100 mm væg mellem dobbelt glasmodul og stålkarm med massivdør.
Vandret snit Flexica. Horisontal samling i 100 mm væg mellem gipsmodul og stålkarm med glasdør.
Vandret snit Flexica. Horisontal samling i 100 mm væg mellem gipsmodul og stålkarm med glasdør.
Vandret snit Flexica. Horisontal samling i 100 mm væg mellem dobbelt glasmodul og stålkarm med glasdør.
Vandret snit Flexica. Horisontal samling i 100 mm væg mellem dobbelt glasmodul og stålkarm med glasdør.

V8 - T-SAMLING

I Flexica-systemet kan T-samlinger udføres med faste partier, glas eller med en kombinationsløsning. Glasløsning kan udføres med enkeltglas.

 

 

Vandret T-samling Flexica. Samling i 2 x 100 mm væg mellem 2 gipsmoduler. Med F-profil.
Vandret T-samling Flexica. Samling i 2 x 100 mm væg mellem 2 gipsmoduler. Med F-profil.
Vandret T-samling Flexica. Samling i 2 x 100 mm væg mellem 2 gipsmoduler. Med 15x20x50 tilslutningsprofil.
Vandret T-samling Flexica. Samling i 2 x 100 mm væg mellem 2 gipsmoduler. Med 15x20x50 tilslutningsprofil.
Vandret T-samling Flexica. Samling i 2 x 100 mm væg mellem gips- og glasmodul. Med F-profil.
Vandret T-samling Flexica. Samling i 2 x 100 mm væg mellem gips- og glasmodul. Med F-profil.
Vandret T-samling Flexica. Samling i 2 x 100 mm væg mellem 2 glasmoduler. Med 15x20x50 tilslutningsprofil.
Vandret T-samling Flexica. Samling i 2 x 100 mm væg mellem 2 glasmoduler. Med 15x20x50 tilslutningsprofil.

V9 - ENDESAMLING 

I Flexica-systemet kan endeløsninger udføres for faste partier, glas eller med en kombinationsløsning med dækkappe i stål eller en blind dørkarm.
Glasløsning kan udføres med enkeltglas.

 

 

Vandret snit Flexica. Vægafslutning i 100 mm gipsvæg. Afslutning med F-profil.
Vandret snit Flexica. Vægafslutning i 100 mm gipsvæg. Afslutning med F-profil.
Vandret snit Flexica. Vægafslutning i 100 mm gipsvæg. Afslutning med dækkappe i stål.
Vandret snit Flexica. Vægafslutning i 100 mm gipsvæg. Afslutning med dækkappe i stål.
Vandret snit Flexica. Vægafslutning i 100 mm gipsvæg. Afslutning med blind dørkarm.
Vandret snit Flexica. Vægafslutning i 100 mm gipsvæg. Afslutning med blind dørkarm.
Vandret snit Flexica. Vægafslutning i 100 mm dobbelt glasvæg. Afslutning med F-profil.
Vandret snit Flexica. Vægafslutning i 100 mm dobbelt glasvæg. Afslutning med F-profil.
Vandret snit Flexica. Vægafslutning i 100 mm dobbelt glasvæg. Afslutning med dækkappe i stål.
Vandret snit Flexica. Vægafslutning i 100 mm dobbelt glasvæg. Afslutning med dækkappe i stål.
Vandret snit Flexica. Vægafslutning i 100 mm dobbelt glasvæg. Afslutning med blind dørkarm.
Vandret snit Flexica. Vægafslutning i 100 mm dobbelt glasvæg. Afslutning med blind dørkarm.
Til toppen

Til toppen

Brochurer

Triplan Flexica brochure
Triplan Flexica Line teknisk brochure

FLEXICA

Klik på numrene for at se detaljen og de forskellige versioner.

L1
L2
L3
L4
L5

Lodret snit

L1: Topløsning

L2: Bundløsning

L3: Modulsamling

L4: Dørløsning

L5: Dørløsning fuldhøjde-dør

V1
V2
V3
V4
V5
V6
V7
V8
V4
V4
V9

Vandret snit

V1: Dørløsning mod væg

V2: Dørløsning slutblikside

V3: Modulsamling

V4: Hjørneløsning

V5: Tilslutning mod væg

V6: Dørløsning dobbeltdør

V7: Dørløsning hængselside

V8: T-samling

V9: Endesamling